Projekt - Maja mäekesel
- Elamispind:
- 147.9 m²
- Üldpind:
- 156 m²
- Kubatuur:
- 648 m³
- Ehit. pindala:
- 110.30 m²
- Katuse kalle:
- 41°
- Kõrgus:
- 7.55 m
Eramaja eelprojekti hind: 1 750 eur
Muud majad ja eriprojektid kokkuleppel
Millest koosneb projekt
Küsi maja kohta

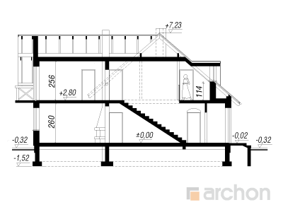
Lõige
- Elamispind:
- 147.9 m²
- Üldpind:
- 156 m²
- Kubatuur:
- 648 m³
- Ehit. pindala:
- 110.30 m²
- Katuse kalle:
- 41°
- Kõrgus:
- 7.55 m

1. korrus
- Esik-1:
- 2.5 m²
- Hall-1:
- 13.2 m²
- Garderoob-1:
- 1.9 m²
- Abiruum-1:
- 2 m²
- Vannituba-1:
- 5 m²
- Söögituba-1:
- 11.7 m²
- Tuba-1:
- 10.2 m²
- Elutuba-1:
- 27.7 m²
- Köök-1:
- 11.8 m²
- Pind kokku:
- 86 m²

2. korrus
- Tuba-1:
- 10.6 m²
- Tuba-2:
- 20.2 m²
- Tuba-3:
- 12.2 m²
- Tuba-4:
- 12.2 m²
- Vannituba-1:
- 9.9 m²
- Garderoob-1:
- 7 m²
- Hall-1:
- 10 m²
- Pind kokku:
- 82.1 m²


/Rukoli-3-(N).jpg)









