Projekt - Maja viirpuudes
- Elamispind:
- 153.5 m²
- Üldpind:
- 177 m²
- Kubatuur:
- 805 m³
- Ehit. pindala:
- 130.00 m²
- Katuse kalle:
- 42°
- Kõrgus:
- 8.80 m
Eramaja eelprojekti hind: 1 750 eur
Muud majad ja eriprojektid kokkuleppel
Millest koosneb projekt
Küsi maja kohta

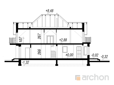
Lõige
- Elamispind:
- 153.5 m²
- Üldpind:
- 177 m²
- Kubatuur:
- 805 m³
- Ehit. pindala:
- 130.00 m²
- Katuse kalle:
- 42°
- Kõrgus:
- 8.80 m

1. korrus
- Esik-1:
- 6.1 m²
- Hall-1:
- 8.2 m²
- Tuba-1:
- 12.7 m²
- Koridor-1:
- 2 m²
- Vannituba-1:
- 3.2 m²
- Katlaruum-1:
- 5 m²
- Elutuba-1:
- 29.4 m²
- Köök-1:
- 10.6 m²
- Trepikoda-1:
- 2.4 m²
- Garaaž-1:
- 18.5 m²
- Pind kokku:
- 98.1 m²

2. korrus
- Trepikoda-1:
- 2.8 m²
- Hall-1:
- 6.9 m²
- Tuba-1:
- 21.7 m²
- Tuba-2:
- 18.5 m²
- Vannituba-1:
- 11 m²
- Tuba-3:
- 21.3 m²
- Tuba-4:
- 21.5 m²
- Pind kokku:
- 103.7 m²









