Projekt - Maja kannikestes
- Elamispind:
- 162.3 m²
- Üldpind:
- 165.1 m²
- Kubatuur:
- 682 m³
- Ehit. pindala:
- 113.70 m²
- Katuse kalle:
- 45°
- Kõrgus:
- 8.25 m
Eramaja eelprojekti hind: 1 750 eur
Muud majad ja eriprojektid kokkuleppel
Millest koosneb projekt
Küsi maja kohta

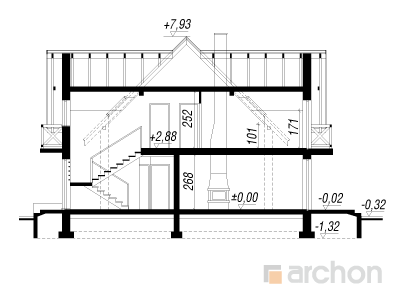
Lõige
- Elamispind:
- 162.3 m²
- Üldpind:
- 165.1 m²
- Kubatuur:
- 682 m³
- Ehit. pindala:
- 113.70 m²
- Katuse kalle:
- 45°
- Kõrgus:
- 8.25 m

1. korrus
- Esik-1:
- 3.5 m²
- Hall-1:
- 13.3 m²
- Trepikoda-1:
- 4.8 m²
- Köök-1:
- 11.1 m²
- Söögituba-1:
- 12.9 m²
- Elutuba-1:
- 26.2 m²
- Tuba-1:
- 10.8 m²
- Vannituba-1:
- 3.3 m²
- Katlaruum-1:
- 4.5 m²
- Pind kokku:
- 90.4 m²

2. korrus
- Hall-1:
- 16.1 m²
- Tuba-1:
- 12 m²
- Tuba-2:
- 13.2 m²
- Tuba-3:
- 21.3 m²
- Tuba-4:
- 15 m²
- Vannituba-1:
- 10 m²
- Pind kokku:
- 87.6 m²










