Projekt - Maja toomingates
- Elamispind:
- 199.2 m²
- Üldpind:
- 276.3 m²
- Kubatuur:
- 1216 m³
- Ehit. pindala:
- 208.20 m²
- Katuse kalle:
- 40°
- Kõrgus:
- 9.25 m
Eramaja eelprojekti hind: 1 750 eur
Muud majad ja eriprojektid kokkuleppel
Millest koosneb projekt
Küsi maja kohta

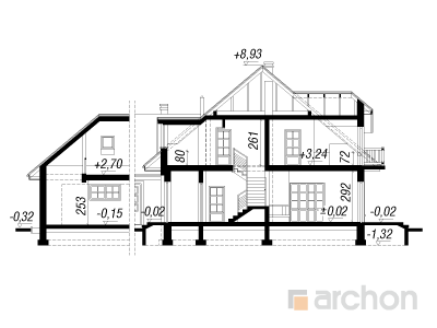
Lõige
- Elamispind:
- 199.2 m²
- Üldpind:
- 276.3 m²
- Kubatuur:
- 1216 m³
- Ehit. pindala:
- 208.20 m²
- Katuse kalle:
- 40°
- Kõrgus:
- 9.25 m

1. korrus
- Esik-1:
- 5.2 m²
- Koridor-1:
- 5.2 m²
- Panipaik-1:
- 2.9 m²
- Köök-1:
- 13.9 m²
- Söögituba-1:
- 16.8 m²
- Elutuba-1:
- 33.2 m²
- Tuba-1:
- 19 m²
- Tuba-2:
- 9.4 m²
- Trepikoda-1:
- 14.4 m²
- Vannituba-1:
- 3.7 m²
- Katlaruum-1:
- 7 m²
- Garaaž-2:
- 40 m²
- Pind kokku:
- 170.7 m²

2. korrus
- Koridor-1:
- 12 m²
- Abiruum-1:
- 3.7 m²
- Garderoob-1:
- 5.2 m²
- Vannituba-1:
- 8.6 m²
- Garderoob-2:
- 4.8 m²
- Tuba-1:
- 15.3 m²
- Tuba-2:
- 16 m²
- Garderoob-3:
- 4.8 m²
- Tuba-3:
- 25.6 m²
- Panipaik-1:
- 11 m²
- Garderoob-4:
- 3.9 m²
- Vannituba-2:
- 6.5 m²
- Tuba-4:
- 14.7 m²
- Abiruum-1:
- 26.1 m²
- Pind kokku:
- 158.2 m²

/Rododendronach-5-(WPN).jpg)







