Projekt - Maja neriinides 5
- Elamispind:
- 111.09 m²
- Üldpind:
- 104.32 m²
- Kubatuur:
- 713.66 m³
- Ehit. pindala:
- 147.58 m²
- Katuse kalle:
- 30°
- Kõrgus:
- 6.29 m
Eramaja eelprojekti hind: 1 750 eur
Muud majad ja eriprojektid kokkuleppel
Millest koosneb projekt
Küsi maja kohta

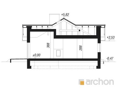
Lõige
- Elamispind:
- 111.09 m²
- Üldpind:
- 104.32 m²
- Kubatuur:
- 713.66 m³
- Ehit. pindala:
- 147.58 m²
- Katuse kalle:
- 30°
- Kõrgus:
- 6.29 m

1. korrus
- Esik-1:
- 3.13 m²
- Koridor-1:
- 2.1 m²
- Köök-1:
- 10.13 m²
- Panipaik-1:
- 1.26 m²
- Elutuba-1:
- 24.53 m²
- Koridor-2:
- 4.84 m²
- WC-1:
- 1.52 m²
- Tuba-1:
- 8.76 m²
- Garderoob-1:
- 3.28 m²
- Vannituba-1:
- 5.19 m²
- Garaaž-1:
- 21.09 m²
- Katlaruum-1:
- 6.77 m²
- Tuba-2:
- 8.78 m²
- Tuba-3:
- 9.71 m²
- Pind kokku:
- 111.09 m²

/Jablonkach-(G2).jpg)











/Nerinach-2-(G2).jpg)