Projekt - Maja puiesteel 17
- Elamispind:
- 439.57 m²
- Üldpind:
- 425.6 m²
- Kubatuur:
- 1754.44 m³
- Ehit. pindala:
- 191.70 m²
- Katuse kalle:
- 30°
- Kõrgus:
- 10.62 m
Eramaja eelprojekti hind: 1 750 eur
Muud majad ja eriprojektid kokkuleppel
Millest koosneb projekt
Küsi maja kohta

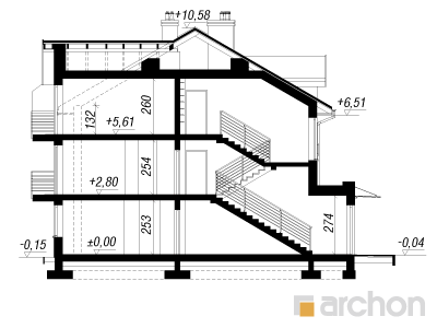
Lõige
- Elamispind:
- 439.57 m²
- Üldpind:
- 425.6 m²
- Kubatuur:
- 1754.44 m³
- Ehit. pindala:
- 191.70 m²
- Katuse kalle:
- 30°
- Kõrgus:
- 10.62 m

1. korrus
- Sissekäik-1:
- 19.46 m²
- Garaaž-1:
- 16.09 m²
- Garaaž-2:
- 34.85 m²
- Garaaž-1:
- 16.45 m²
- Garaaž-1:
- 16.09 m²
- Abiruum-1:
- 8.41 m²
- Abiruum-2:
- 8.84 m²
- Korter-1:
- 28.87 m²
- Pind kokku:
- 149.06 m²

2. korrus
- Trepikoda-1:
- 15.36 m²
- Korter-1:
- 52.1 m²
- Korter-2:
- 28.64 m²
- Korter-3:
- 52 m²
- Pind kokku:
- 148.1 m²

3. korrus
- Trepikoda-1:
- 10.02 m²
- Korter-1:
- 66.18 m²
- Korter-2:
- 66.21 m²
- Pind kokku:
- 142.41 m²

























/Bulwarem-3-(SN).jpg)
/Bulwarem-3-(BN).jpg)
