Projekt - Maja tüümianides 8
- Elamispind:
- 182.07 m²
- Üldpind:
- 160.34 m²
- Kubatuur:
- 815.85 m³
- Ehit. pindala:
- 124.34 m²
- Katuse kalle:
- 38°
- Kõrgus:
- 8.62 m
Eramaja eelprojekti hind: 1 750 eur
Muud majad ja eriprojektid kokkuleppel
Millest koosneb projekt
Küsi maja kohta

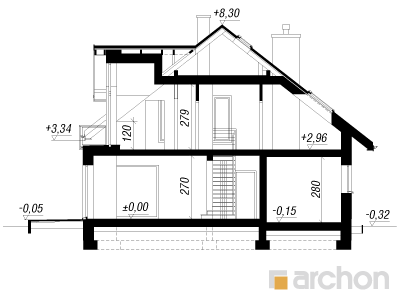
Lõige
- Elamispind:
- 182.07 m²
- Üldpind:
- 160.34 m²
- Kubatuur:
- 815.85 m³
- Ehit. pindala:
- 124.34 m²
- Katuse kalle:
- 38°
- Kõrgus:
- 8.62 m

1. korrus
- Esik-1:
- 8.05 m²
- Koridor-1:
- 9.21 m²
- Köök-1:
- 10.15 m²
- Elutuba-1:
- 30.09 m²
- Koridor-2:
- 3.61 m²
- Vannituba-1:
- 3.53 m²
- Tuba-1:
- 7.65 m²
- Katlaruum-1:
- 4.04 m²
- Garaaž-1:
- 20.56 m²
- Pind kokku:
- 96.89 m²

2. korrus
- Koridor-1:
- 10.94 m²
- Vannituba-1:
- 11.1 m²
- Pesuruum-1:
- 6.53 m²
- Garderoob-1:
- 6.62 m²
- Tuba-1:
- 16.49 m²
- Tuba-2:
- 14.23 m²
- Tuba-3:
- 18.87 m²
- Pind kokku:
- 84.78 m²


/Lewkoniach (G2P).jpg)










/Tymianku 4(G2).jpg)



/Tymianku 3 (P).jpg)



