Projekt - Maja neriinides 4
- Elamispind:
- 120.31 m²
- Üldpind:
- 114.54 m²
- Kubatuur:
- 798.09 m³
- Ehit. pindala:
- 158.89 m²
- Katuse kalle:
- 30°
- Kõrgus:
- 6.29 m
Eramaja eelprojekti hind: 1 750 eur
Muud majad ja eriprojektid kokkuleppel
Millest koosneb projekt
Küsi maja kohta

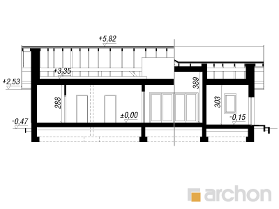
Lõige
- Elamispind:
- 120.31 m²
- Üldpind:
- 114.54 m²
- Kubatuur:
- 798.09 m³
- Ehit. pindala:
- 158.89 m²
- Katuse kalle:
- 30°
- Kõrgus:
- 6.29 m

1. korrus
- Esik-1:
- 3.13 m²
- Koridor-1:
- 2.1 m²
- Garaaž-1:
- 17.9 m²
- Katlaruum-1:
- 5.77 m²
- Köök-1:
- 10.13 m²
- Garderoob-1:
- 3.64 m²
- Vannituba-1:
- 9.37 m²
- Elutuba-1:
- 24.53 m²
- WC-1:
- 1.52 m²
- Panipaik-1:
- 1.26 m²
- Koridor-2:
- 6.76 m²
- Tuba-1:
- 8.79 m²
- Tuba-2:
- 12.72 m²
- Tuba-3:
- 12.69 m²
- Pind kokku:
- 120.31 m²












/Nerinach-2-(G2).jpg)
