Projekt - Maja akeebiates 4
- Elamispind:
- 129.43 m²
- Üldpind:
- 129.43 m²
- Kubatuur:
- 790.36 m³
- Ehit. pindala:
- 169.42 m²
- Katuse kalle:
- 30°
- Kõrgus:
- 6.67 m
Eramaja eelprojekti hind: 1 750 eur
Muud majad ja eriprojektid kokkuleppel
Millest koosneb projekt
Küsi maja kohta

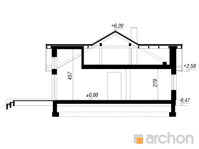
Lõige
- Elamispind:
- 129.43 m²
- Üldpind:
- 129.43 m²
- Kubatuur:
- 790.36 m³
- Ehit. pindala:
- 169.42 m²
- Katuse kalle:
- 30°
- Kõrgus:
- 6.67 m

1. korrus
- Esik-1:
- 8.34 m²
- Köök-1:
- 11.64 m²
- Tuba-1:
- 11 m²
- Koridor-1:
- 2.68 m²
- Tuba-2:
- 10.41 m²
- Vannituba-1:
- 4.26 m²
- Elutuba-1:
- 31.35 m²
- Tuba-3:
- 11.99 m²
- Koridor-2:
- 1.74 m²
- Vannituba-2:
- 4.81 m²
- Katlaruum-1:
- 6.03 m²
- WC-1:
- 1.67 m²
- Garaaž-1:
- 23.51 m²
- Pind kokku:
- 129.43 m²

/Werbenach-4-(W).jpg)











/Akebiach-(W).jpg)
