Projekt - Maja hüatsintides (G2)
- Elamispind:
- 149.7 m²
- Üldpind:
- 213.2 m²
- Kubatuur:
- 941 m³
- Ehit. pindala:
- 160.80 m²
- Katuse kalle:
- 38°
- Kõrgus:
- 8.23 m
Eramaja eelprojekti hind: 1 750 eur
Muud majad ja eriprojektid kokkuleppel
Millest koosneb projekt
Küsi maja kohta
/a.jpg)
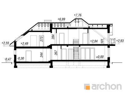
Lõige
- Elamispind:
- 149.7 m²
- Üldpind:
- 213.2 m²
- Kubatuur:
- 941 m³
- Ehit. pindala:
- 160.80 m²
- Katuse kalle:
- 38°
- Kõrgus:
- 8.23 m
/1.jpg)
1. korrus
- Esik-1:
- 4.4 m²
- Panipaik-1:
- 1.2 m²
- Köök-1:
- 9.6 m²
- Elutuba-1:
- 31.5 m²
- Koridor-1:
- 5.9 m²
- Koridor-2:
- 2.6 m²
- Panipaik-2:
- 1.8 m²
- Koridor-3:
- 1.4 m²
- Garaaž-2:
- 36.7 m²
- Katlaruum-1:
- 12.7 m²
- Garderoob-1:
- 2.8 m²
- Pesuruum-1:
- 3.6 m²
- Vannituba-1:
- 3.5 m²
- Tuba-1:
- 11.9 m²
- Pind kokku:
- 129.6 m²
/2.jpg)
2. korrus
- Koridor-1:
- 2.6 m²
- Koridor-2:
- 6.7 m²
- Garderoob-1:
- 4 m²
- Garderoob-2:
- 9.9 m²
- Garderoob-3:
- 5.7 m²
- Vannituba-1:
- 13.3 m²
- Tuba-1:
- 22.3 m²
- Tuba-2:
- 14.5 m²
- Tuba-3:
- 15.2 m²
- Tuba-4:
- 34.9 m²
- Pind kokku:
- 129.1 m²




/Hiacyntowcach-(G2).jpg)
/Hiacyntowcach-(G2)-m2.jpg)
/Hiacyntowcach-(G2)-m3.jpg)
/Hiacyntowcach-(G2)-m4.jpg)
/Hiacyntowcach-(G2)-m1.jpg)
/Hiacyntowcach-(G2)-m5.jpg)
