Projekt - Maja Idared'ides (G2)
- Elamispind:
- 133.4 m²
- Üldpind:
- 198.2 m²
- Kubatuur:
- 885.4 m³
- Ehit. pindala:
- 136.30 m²
- Katuse kalle:
- 40°
- Kõrgus:
- 8.43 m
Eramaja eelprojekti hind: 1 750 eur
Muud majad ja eriprojektid kokkuleppel
Millest koosneb projekt
Küsi maja kohta
/a.jpg)
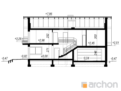
Lõige
- Elamispind:
- 133.4 m²
- Üldpind:
- 198.2 m²
- Kubatuur:
- 885.4 m³
- Ehit. pindala:
- 136.30 m²
- Katuse kalle:
- 40°
- Kõrgus:
- 8.43 m
/1.jpg)
1. korrus
- Esik-1:
- 3 m²
- Koridor-1:
- 6 m²
- Elutuba-1:
- 31.9 m²
- Köök-1:
- 10.8 m²
- Vannituba-1:
- 3.7 m²
- Koridor-2:
- 0.9 m²
- Panipaik-1:
- 3 m²
- Katlaruum-1:
- 12.8 m²
- Garaaž-2:
- 35.2 m²
- Pind kokku:
- 107.3 m²
/2.jpg)
2. korrus
- Koridor-1:
- 8.4 m²
- Garderoob-1:
- 7.2 m²
- Garderoob-2:
- 4.1 m²
- Garderoob-3:
- 3.6 m²
- Vannituba-1:
- 10.9 m²
- Tuba-1:
- 19.3 m²
- Koridor-2:
- 5.9 m²
- Pesuruum-1:
- 4.3 m²
- Tuba-2:
- 14.9 m²
- Tuba-3:
- 17.5 m²
- Tuba-4:
- 13.8 m²
- Pind kokku:
- 109.9 m²


/Awokado-(GN).jpg)

/Idaredach-(G2).jpg)
/Idaredach-(G2)-m2.jpg)
/Idaredach-(G2)-m3.jpg)
/Idaredach-(G2)-m4.jpg)
/Idaredach-(G2)-m1.jpg)
/Idaredach-(G2)-m5.jpg)



/Idaredach-2-(G2).jpg)
/Idaredach-(P).jpg)

/Idaredach-5-(A).jpg)