Projekt - Maja tulbipuude all
- Elamispind:
- 112.6 m²
- Üldpind:
- 156.4 m²
- Kubatuur:
- 725 m³
- Ehit. pindala:
- 110.60 m²
- Katuse kalle:
- 40°
- Kõrgus:
- 8.60 m
Eramaja eelprojekti hind: 1 750 eur
Muud majad ja eriprojektid kokkuleppel
Millest koosneb projekt
Küsi maja kohta

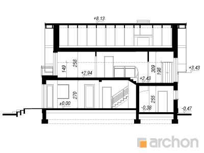
Lõige
- Elamispind:
- 112.6 m²
- Üldpind:
- 156.4 m²
- Kubatuur:
- 725 m³
- Ehit. pindala:
- 110.60 m²
- Katuse kalle:
- 40°
- Kõrgus:
- 8.60 m

1. korrus
- Esik-1:
- 4.8 m²
- Koridor-1:
- 4.6 m²
- Koridor-2:
- 2.3 m²
- Vannituba-1:
- 3.2 m²
- Panipaik-1:
- 1.5 m²
- Köök-1:
- 8.6 m²
- Elutuba-1:
- 24.1 m²
- Tuba-1:
- 9.2 m²
- Katlaruum-1:
- 7.6 m²
- Garaaž-1:
- 19.4 m²
- Pind kokku:
- 85.3 m²

2. korrus
- Koridor-1:
- 8.3 m²
- Abiruum-1:
- 6.9 m²
- Garderoob-1:
- 3.7 m²
- Garderoob-2:
- 4.6 m²
- Pesuruum-1:
- 3.9 m²
- Vannituba-1:
- 9.1 m²
- Tuba-1:
- 16.3 m²
- Tuba-2:
- 15.6 m²
- Tuba-3:
- 13 m²
- Pind kokku:
- 81.4 m²


/Poziomkach-5-(GN).jpg)






