Projekt - Maja kallades 2 (G)
- Elamispind:
- 185.4 m²
- Üldpind:
- 252.3 m²
- Kubatuur:
- 1024 m³
- Ehit. pindala:
- 169.00 m²
- Katuse kalle:
- 42°
- Kõrgus:
- 9.20 m
Eramaja eelprojekti hind: 1 750 eur
Muud majad ja eriprojektid kokkuleppel
Millest koosneb projekt
Küsi maja kohta
/a.jpg)
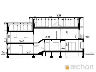
Lõige
- Elamispind:
- 185.4 m²
- Üldpind:
- 252.3 m²
- Kubatuur:
- 1024 m³
- Ehit. pindala:
- 169.00 m²
- Katuse kalle:
- 42°
- Kõrgus:
- 9.20 m
/1.jpg)
1. korrus
- Esik-1:
- 3.2 m²
- Panipaik-1:
- 1.7 m²
- Köök-1:
- 12.5 m²
- Elutuba-1:
- 36.1 m²
- Tuba-1:
- 12.6 m²
- Hall-1:
- 9.8 m²
- Garderoob-1:
- 2.1 m²
- Pesuruum-1:
- 3.6 m²
- Vannituba-1:
- 2.8 m²
- Koridor-1:
- 5.5 m²
- Garaaž-2:
- 35.3 m²
- Katlaruum-1:
- 11.4 m²
- Pind kokku:
- 136.6 m²
/2.jpg)
2. korrus
- Koridor-1:
- 5.3 m²
- Koridor-2:
- 8.5 m²
- Vannituba-1:
- 11.2 m²
- Tuba-1:
- 17.1 m²
- Tuba-2:
- 15.6 m²
- Tuba-3:
- 34.1 m²
- Tuba-4:
- 9.4 m²
- Tuba-5:
- 16.4 m²
- Garderoob-1:
- 6 m²
- Garderoob-2:
- 6.4 m²
- Garderoob-3:
- 6.5 m²
- Pind kokku:
- 136.5 m²



/Liczi-(P).jpg)
/Kaliach-2-(G2).jpg)
/Kaliach-2-(G2)-m2.jpg)
/Kaliach-2-(G2)-m3.jpg)
/Kaliach-2-(G2)-m4.jpg)
/Kaliach-2-(G2)-m1.jpg)
/Kaliach-2-(G2)-m5.jpg)






/Kaliach 4 (G2).jpg)
/Kaliach-3-(P).jpg)