Projekt - Maja litseade all (G2)
- Elamispind:
- 106.4 m²
- Üldpind:
- 172.3 m²
- Kubatuur:
- 756 m³
- Ehit. pindala:
- 123.00 m²
- Katuse kalle:
- 40°
- Kõrgus:
- 8.11 m
Eramaja eelprojekti hind: 1 750 eur
Muud majad ja eriprojektid kokkuleppel
Millest koosneb projekt
Küsi maja kohta
/a.jpg)
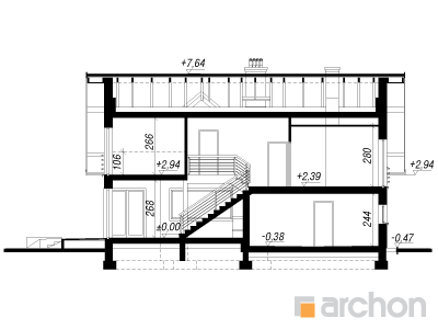
Lõige
- Elamispind:
- 106.4 m²
- Üldpind:
- 172.3 m²
- Kubatuur:
- 756 m³
- Ehit. pindala:
- 123.00 m²
- Katuse kalle:
- 40°
- Kõrgus:
- 8.11 m
/1.jpg)
1. korrus
- Esik-1:
- 5.6 m²
- Koridor-1:
- 1.7 m²
- WC-1:
- 1.9 m²
- Köök-1:
- 7.8 m²
- Elutuba-1:
- 30.2 m²
- Koridor-1:
- 3 m²
- Katlaruum-1:
- 9.1 m²
- Abiruum-1:
- 4.7 m²
- Garaaž-2:
- 35 m²
- Pind kokku:
- 99 m²
/2.jpg)
2. korrus
- Koridor-1:
- 9.2 m²
- Vannituba-1:
- 9.2 m²
- Pesuruum-1:
- 5.2 m²
- Garderoob-1:
- 6.9 m²
- Garderoob-2:
- 8.3 m²
- Garderoob-3:
- 4.6 m²
- Tuba-1:
- 22.7 m²
- Tuba-2:
- 17.7 m²
- Tuba-3:
- 10.1 m²
- Pind kokku:
- 93.9 m²




/Liczi-(G2).jpg)
/Liczi-(G2)-m2.jpg)
/Liczi-(G2)-m3.jpg)
/Liczi-(G2)-m4.jpg)
/Liczi-(G2)-m1.jpg)
/Liczi-(G2)-m5.jpg)


/Liczi-(P).jpg)
