Projekt - Maja krootonites
- Elamispind:
- 145.5 m²
- Üldpind:
- 162.9 m²
- Kubatuur:
- 736 m³
- Ehit. pindala:
- 111.00 m²
- Katuse kalle:
- 2°
- Kõrgus:
- 7.61 m
Eramaja eelprojekti hind: 1 750 eur
Muud majad ja eriprojektid kokkuleppel
Millest koosneb projekt
Küsi maja kohta

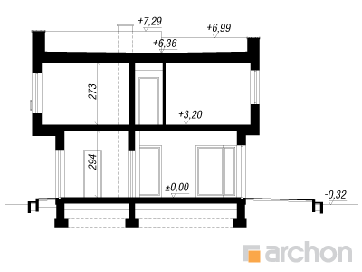
Lõige
- Elamispind:
- 145.5 m²
- Üldpind:
- 162.9 m²
- Kubatuur:
- 736 m³
- Ehit. pindala:
- 111.00 m²
- Katuse kalle:
- 2°
- Kõrgus:
- 7.61 m

1. korrus
- Esik-1:
- 7 m²
- Panipaik-1:
- 2.3 m²
- Köök-1:
- 10.8 m²
- Elutuba-1:
- 39.8 m²
- Koridor-1:
- 6.8 m²
- Hall-1:
- 10.2 m²
- Vannituba-1:
- 3.2 m²
- Katlaruum-1:
- 5 m²
- Pind kokku:
- 85.1 m²

2. korrus
- Koridor-1:
- 10.8 m²
- Garderoob-1:
- 6.6 m²
- Garderoob-2:
- 3.5 m²
- Tuba-1:
- 14.7 m²
- Tuba-2:
- 17.5 m²
- Tuba-3:
- 14.8 m²
- Vannituba-1:
- 5.5 m²
- Vannituba-2:
- 14.8 m²
- Pind kokku:
- 88.2 m²









