Projekt - Maja kännakutes
- Elamispind:
- 129 m²
- Üldpind:
- 167.1 m²
- Kubatuur:
- 801 m³
- Ehit. pindala:
- 119.40 m²
- Katuse kalle:
- 42°
- Kõrgus:
- 8.87 m
Eramaja eelprojekti hind: 1 750 eur
Muud majad ja eriprojektid kokkuleppel
Millest koosneb projekt
Küsi maja kohta

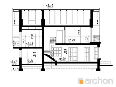
Lõige
- Elamispind:
- 129 m²
- Üldpind:
- 167.1 m²
- Kubatuur:
- 801 m³
- Ehit. pindala:
- 119.40 m²
- Katuse kalle:
- 42°
- Kõrgus:
- 8.87 m

1. korrus
- Esik-1:
- 6 m²
- Koridor-1:
- 2.8 m²
- Koridor-2:
- 2.1 m²
- WC-1:
- 1.8 m²
- Köök-1:
- 8.6 m²
- Elutuba-1:
- 39.4 m²
- Katlaruum-1:
- 8.7 m²
- Garaaž-1:
- 18.6 m²
- Pind kokku:
- 88 m²

2. korrus
- Koridor-1:
- 11.2 m²
- Vannituba-1:
- 9.5 m²
- Pesuruum-1:
- 8.5 m²
- Garderoob-1:
- 4.4 m²
- Tuba-1:
- 11.4 m²
- Tuba-2:
- 14.9 m²
- Tuba-3:
- 17.2 m²
- Tuba-4:
- 13.1 m²
- Pind kokku:
- 90.2 m²









