Projekt - Maja priimulates 3
- Elamispind:
- 111.3 m²
- Üldpind:
- 136 m²
- Kubatuur:
- 596 m³
- Ehit. pindala:
- 108.00 m²
- Katuse kalle:
- 45°
- Kõrgus:
- 8.37 m
Eramaja eelprojekti hind: 1 750 eur
Muud majad ja eriprojektid kokkuleppel
Millest koosneb projekt
Küsi maja kohta

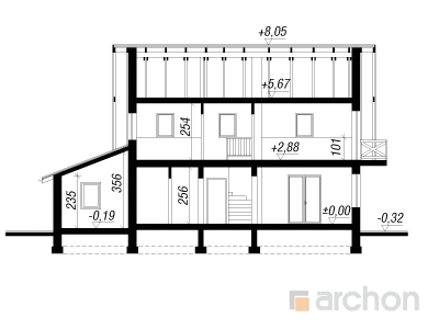
Lõige
- Elamispind:
- 111.3 m²
- Üldpind:
- 136 m²
- Kubatuur:
- 596 m³
- Ehit. pindala:
- 108.00 m²
- Katuse kalle:
- 45°
- Kõrgus:
- 8.37 m

1. korrus
- Esik-1:
- 3.2 m²
- Hall-1:
- 9.8 m²
- Katlaruum-1:
- 5.2 m²
- Vannituba-1:
- 2.7 m²
- Tuba-1:
- 9.9 m²
- Panipaik-1:
- 3.4 m²
- Elutuba-1:
- 19.8 m²
- Köök-1:
- 12.4 m²
- Garaaž-1:
- 17.9 m²
- Pind kokku:
- 84.3 m²

2. korrus
- Hall-1:
- 6.5 m²
- Vannituba-1:
- 10.7 m²
- Tuba-1:
- 10.7 m²
- Trepikoda-1:
- 4.7 m²
- Tuba-2:
- 16.4 m²
- Tuba-3:
- 16.1 m²
- Garderoob-1:
- 5 m²
- Pind kokku:
- 70.1 m²













