Projekt - Maja raudürtides 5
- Elamispind:
- 149.4 m²
- Üldpind:
- 179.6 m²
- Kubatuur:
- 816 m³
- Ehit. pindala:
- 126.00 m²
- Katuse kalle:
- 42°
- Kõrgus:
- 8.63 m
Eramaja eelprojekti hind: 1 750 eur
Muud majad ja eriprojektid kokkuleppel
Millest koosneb projekt
Küsi maja kohta

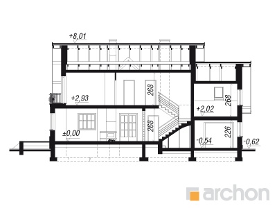
Lõige
- Elamispind:
- 149.4 m²
- Üldpind:
- 179.6 m²
- Kubatuur:
- 816 m³
- Ehit. pindala:
- 126.00 m²
- Katuse kalle:
- 42°
- Kõrgus:
- 8.63 m

1. korrus
- Esik-1:
- 3.2 m²
- Hall-1:
- 6.7 m²
- Panipaik-1:
- 1.6 m²
- Köök-1:
- 9.4 m²
- Elutuba-1:
- 33.2 m²
- Tuba-1:
- 10.3 m²
- Koridor-1:
- 4.3 m²
- Katlaruum-1:
- 4.9 m²
- Vannituba-1:
- 3.6 m²
- Garaaž-1:
- 21 m²
- Pind kokku:
- 98.2 m²

2. korrus
- Tuba-1:
- 21.6 m²
- Tuba-2:
- 16.8 m²
- Tuba-3:
- 13.7 m²
- Tuba-4:
- 21.3 m²
- Garderoob-1:
- 3.8 m²
- Koridor-1:
- 5 m²
- Koridor-2:
- 7.2 m²
- Vannituba-1:
- 10.2 m²
- Pind kokku:
- 99.6 m²



/Kaliach-2-(G2).jpg)

















/Werbenach-(N).jpg)
/Werbenach-7-(G2P).jpg)
/Werbenach-4-(W).jpg)