Projekt - Maja elulõngades 11
- Elamispind:
- 231.2 m²
- Üldpind:
- 271.8 m²
- Kubatuur:
- 1175 m³
- Ehit. pindala:
- 177.50 m²
- Katuse kalle:
- 37°
- Kõrgus:
- 8.34 m
Eramaja eelprojekti hind: 1 750 eur
Muud majad ja eriprojektid kokkuleppel
Millest koosneb projekt
Küsi maja kohta

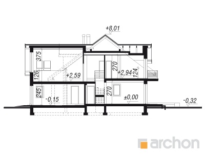
Lõige
- Elamispind:
- 231.2 m²
- Üldpind:
- 271.8 m²
- Kubatuur:
- 1175 m³
- Ehit. pindala:
- 177.50 m²
- Katuse kalle:
- 37°
- Kõrgus:
- 8.34 m

1. korrus
- Esik-1:
- 5.7 m²
- Hall-1:
- 4.4 m²
- Köök-1:
- 6.7 m²
- Elutuba-1:
- 31.3 m²
- Koridor-1:
- 4.3 m²
- WC-1:
- 1.6 m²
- Garaaž-1:
- 19.7 m²
- Panipaik-1:
- 2.1 m²
- Pind kokku:
- 75.8 m²

2. korrus
- Koridor-1:
- 6.6 m²
- Tuba-1:
- 19.2 m²
- Tuba-2:
- 8.7 m²
- Tuba-3:
- 12.9 m²
- Tuba-4:
- 14.8 m²
- Vannituba-1:
- 6.5 m²
- Pind kokku:
- 68.7 m²

/Wisteriach-2-(W).jpg)
/Blawatkach-2-(N).jpg)



























/Klematisach-12-(B).jpg)
/Klematisach-12-(S).jpg)
/Klematisach-14-(R2B).jpg)
/Klematisach-10-(A).jpg)
/Klematisach-9-(AB).jpg)
/Klematisach-4-(R2).jpg)

/Klematisach-17-(B).jpg)