Projekt - Maja kaljukünkal 3
- Elamispind:
- 102.8 m²
- Üldpind:
- 136.7 m²
- Kubatuur:
- 670 m³
- Ehit. pindala:
- 102.20 m²
- Katuse kalle:
- 42°
- Kõrgus:
- 8.53 m
Eramaja eelprojekti hind: 1 750 eur
Muud majad ja eriprojektid kokkuleppel
Millest koosneb projekt
Küsi maja kohta

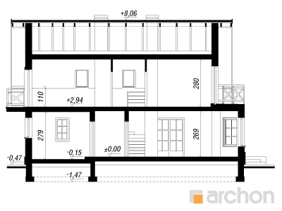
Lõige
- Elamispind:
- 102.8 m²
- Üldpind:
- 136.7 m²
- Kubatuur:
- 670 m³
- Ehit. pindala:
- 102.20 m²
- Katuse kalle:
- 42°
- Kõrgus:
- 8.53 m

1. korrus
- Vannituba-1:
- 2.8 m²
- Garaaž-1:
- 22.5 m²
- Katlaruum-1:
- 4.4 m²
- Elutuba-1:
- 23.9 m²
- Köök-1:
- 8.4 m²
- Panipaik-1:
- 2 m²
- Koridor-1:
- 3.4 m²
- Esik-1:
- 3.8 m²
- Pind kokku:
- 71.2 m²

2. korrus
- Garderoob-2:
- 6.2 m²
- Vannituba-1:
- 9.1 m²
- Tuba-3:
- 24.6 m²
- Tuba-2:
- 13.8 m²
- Tuba-1:
- 15.1 m²
- Hall-1:
- 5.8 m²
- Koridor-1:
- 4.5 m²
- Pind kokku:
- 79.1 m²


/Powojach-3-(G2).jpg)
/Milorzebem-2-(R2).jpg)







