Projekt - Maja elupuudes
- Elamispind:
- 146.5 m²
- Üldpind:
- 183.7 m²
- Kubatuur:
- 853 m³
- Ehit. pindala:
- 141.70 m²
- Katuse kalle:
- 40°
- Kõrgus:
- 8.73 m
Eramaja eelprojekti hind: 1 750 eur
Muud majad ja eriprojektid kokkuleppel
Millest koosneb projekt
Küsi maja kohta

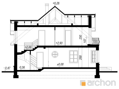
Lõige
- Elamispind:
- 146.5 m²
- Üldpind:
- 183.7 m²
- Kubatuur:
- 853 m³
- Ehit. pindala:
- 141.70 m²
- Katuse kalle:
- 40°
- Kõrgus:
- 8.73 m

1. korrus
- Esik-1:
- 3.5 m²
- Hall-1:
- 4.2 m²
- Panipaik-1:
- 1.7 m²
- Köök-1:
- 10.4 m²
- Elutuba-1:
- 37.4 m²
- Tuba-1:
- 12.3 m²
- Garaaž-1:
- 19.8 m²
- Katlaruum-1:
- 6.4 m²
- Vannituba-1:
- 3.4 m²
- Panipaik-2:
- 2.1 m²
- Koridor-1:
- 2.9 m²
- Koridor-2:
- 3.6 m²
- Pind kokku:
- 107.7 m²

2. korrus
- Koridor-1:
- 1.7 m²
- Tuba-1:
- 22.6 m²
- Tuba-2:
- 14.8 m²
- Tuba-3:
- 13.4 m²
- Tuba-4:
- 15.9 m²
- Garderoob-1:
- 2.7 m²
- Garderoob-2:
- 4.5 m²
- Garderoob-3:
- 4.5 m²
- Garderoob-4:
- 4.9 m²
- Vannituba-1:
- 8.1 m²
- Hall-1:
- 7 m²
- Vannituba-2:
- 2.7 m²
- Pind kokku:
- 102.8 m²

/Majeranku-2-(G2).jpg)







