Projekt - Maja mürtides 4(B)
- Elamispind:
- 107.5 m²
- Üldpind:
- 136 m²
- Kubatuur:
- 622 m³
- Ehit. pindala:
- 93.10 m²
- Katuse kalle:
- 35°
- Kõrgus:
- 8.50 m
Eramaja eelprojekti hind: 1 750 eur
Muud majad ja eriprojektid kokkuleppel
Millest koosneb projekt
Küsi maja kohta

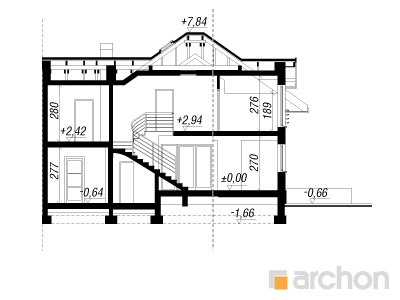
Lõige
- Elamispind:
- 107.5 m²
- Üldpind:
- 136 m²
- Kubatuur:
- 622 m³
- Ehit. pindala:
- 93.10 m²
- Katuse kalle:
- 35°
- Kõrgus:
- 8.50 m

1. korrus
- Esik-1:
- 2 m²
- Hall-1:
- 6.2 m²
- Garderoob-1:
- 2 m²
- Köök-1:
- 8 m²
- Elutuba-1:
- 24.6 m²
- Koridor-1:
- 3.9 m²
- Vannituba-1:
- 4.3 m²
- Garaaž-1:
- 17.3 m²
- Katlaruum-1:
- 4.4 m²
- Pind kokku:
- 72.7 m²

2. korrus
- Koridor-1:
- 1.6 m²
- Tuba-1:
- 11 m²
- Tuba-2:
- 14.4 m²
- Tuba-3:
- 11.4 m²
- Tuba-4:
- 11.4 m²
- Garderoob-1:
- 5.9 m²
- Vannituba-1:
- 8.4 m²
- Hall-1:
- 6 m²
- Pind kokku:
- 70.1 m²













