Projekt - Maja mägimändides 2
- Elamispind:
- 149.9 m²
- Üldpind:
- 183.9 m²
- Kubatuur:
- 815 m³
- Ehit. pindala:
- 128.30 m²
- Katuse kalle:
- 42°
- Kõrgus:
- 8.31 m
Eramaja eelprojekti hind: 1 750 eur
Muud majad ja eriprojektid kokkuleppel
Millest koosneb projekt
Küsi maja kohta

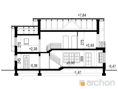
Lõige
- Elamispind:
- 149.9 m²
- Üldpind:
- 183.9 m²
- Kubatuur:
- 815 m³
- Ehit. pindala:
- 128.30 m²
- Katuse kalle:
- 42°
- Kõrgus:
- 8.31 m

1. korrus
- Esik-1:
- 3.9 m²
- Hall-1:
- 8.2 m²
- Köök-1:
- 9.1 m²
- Abiruum-1:
- 1.7 m²
- Garaaž-2:
- 33.5 m²
- Tuba-1:
- 12.1 m²
- Koridor-1:
- 5.8 m²
- Vannituba-1:
- 3 m²
- Katlaruum-1:
- 4.8 m²
- Garaaž-1:
- 21.3 m²
- Pind kokku:
- 103.4 m²

2. korrus
- Koridor-1:
- 7.8 m²
- Garderoob-1:
- 3.5 m²
- Garderoob-2:
- 6 m²
- Vannituba-1:
- 6.8 m²
- Tuba-1:
- 17.7 m²
- Tuba-2:
- 16.2 m²
- Tuba-3:
- 14.9 m²
- Tuba-4:
- 9.1 m²
- Tuba-5:
- 14 m²
- Pind kokku:
- 96 m²


/Zielistkach-(G).jpg)








/Kosowce-(P).jpg)