Projekt - Maja raudürtides (G2)
- Elamispind:
- 126.5 m²
- Üldpind:
- 175.5 m²
- Kubatuur:
- 779 m³
- Ehit. pindala:
- 129.70 m²
- Katuse kalle:
- 42°
- Kõrgus:
- 8.44 m
Eramaja eelprojekti hind: 1 750 eur
Muud majad ja eriprojektid kokkuleppel
Millest koosneb projekt
Küsi maja kohta

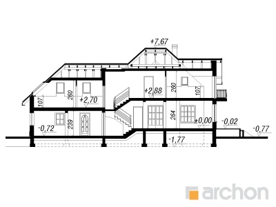
Lõige
- Elamispind:
- 126.5 m²
- Üldpind:
- 175.5 m²
- Kubatuur:
- 779 m³
- Ehit. pindala:
- 129.70 m²
- Katuse kalle:
- 42°
- Kõrgus:
- 8.44 m

1. korrus
- Esik-1:
- 2.7 m²
- Köök-1:
- 9.3 m²
- Elutuba-1:
- 26 m²
- Tuba-1:
- 8.5 m²
- Hall-1:
- 6.1 m²
- Vannituba-1:
- 2.5 m²
- Abiruum-1:
- 3.9 m²
- Katlaruum-1:
- 4 m²
- Garaaž-2:
- 38.7 m²
- Pind kokku:
- 101.7 m²

2. korrus
- Hall-1:
- 5.8 m²
- Koridor-1:
- 4.4 m²
- Vannituba-1:
- 8.7 m²
- Garderoob-1:
- 2.9 m²
- Garderoob-2:
- 4.7 m²
- Abiruum-1:
- 10 m²
- Tuba-1:
- 18.7 m²
- Tuba-2:
- 14.2 m²
- Tuba-3:
- 11.4 m²
- Tuba-4:
- 23.7 m²
- Pind kokku:
- 104.5 m²


/Rododendronach-18-(G2T).jpg)


















/Werbenach-(N).jpg)
/Werbenach-7-(G2P).jpg)
/Werbenach-4-(W).jpg)