Projekt - Maja puiesteel 6
- Elamispind:
- 405.8 m²
- Üldpind:
- 594.6 m²
- Kubatuur:
- 2277 m³
- Ehit. pindala:
- 189.30 m²
- Katuse kalle:
- 35°
- Kõrgus:
- 11.01 m
Eramaja eelprojekti hind: 1 750 eur
Muud majad ja eriprojektid kokkuleppel
Millest koosneb projekt
Küsi maja kohta

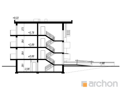
Lõige
- Elamispind:
- 405.8 m²
- Üldpind:
- 594.6 m²
- Kubatuur:
- 2277 m³
- Ehit. pindala:
- 189.30 m²
- Katuse kalle:
- 35°
- Kõrgus:
- 11.01 m

Kelder
- Abiruum-6:
- 5.4 m²
- Abiruum-5:
- 7.8 m²
- Abiruum-4:
- 7.8 m²
- Abiruum-3:
- 7.8 m²
- Abiruum-2:
- 7.8 m²
- Abiruum-1:
- 9.5 m²
- Tehniline ruum-1:
- 2.3 m²
- Garaaž-2:
- 34.1 m²
- Garaaž-2:
- 34.1 m²
- Koridor-1:
- 16.2 m²
- Trepikoda-1:
- 8.4 m²
- Pind kokku:
- 141.2 m²

1. korrus
- Korter-1:
- 67.1 m²
- Trepikoda-1:
- 16.7 m²
- Korter-2:
- 67.1 m²
- Pind kokku:
- 150.9 m²

2. korrus
- Trepikoda-1:
- 16.7 m²
- Korter-1:
- 67 m²
- Korter-2:
- 67 m²
- Pind kokku:
- 150.7 m²

3. korrus
- Trepikoda-1:
- 16.7 m²
- Korter-1:
- 68.8 m²
- Korter-2:
- 68.8 m²
- Pind kokku:
- 154.3 m²

/Rubinach-(B).jpg)























/Bulwarem-3-(SN).jpg)
/Bulwarem-3-(BN).jpg)

