Projekt - Maja nemeesias (G2)
- Elamispind:
- 190.5 m²
- Üldpind:
- 252.5 m²
- Kubatuur:
- 1124 m³
- Ehit. pindala:
- 172.10 m²
- Katuse kalle:
- 40°
- Kõrgus:
- 8.60 m
Eramaja eelprojekti hind: 1 750 eur
Muud majad ja eriprojektid kokkuleppel
Millest koosneb projekt
Küsi maja kohta

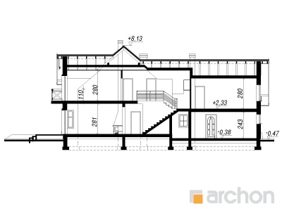
Lõige
- Elamispind:
- 190.5 m²
- Üldpind:
- 252.5 m²
- Kubatuur:
- 1124 m³
- Ehit. pindala:
- 172.10 m²
- Katuse kalle:
- 40°
- Kõrgus:
- 8.60 m

1. korrus
- Esik-1:
- 4.8 m²
- Hall-1:
- 10.4 m²
- Köök-1:
- 13.6 m²
- Söögituba-1:
- 13.7 m²
- Elutuba-1:
- 20.1 m²
- Tuba-1:
- 13.7 m²
- Vannituba-1:
- 4.6 m²
- Pesuruum-1:
- 6.5 m²
- WC-1:
- 2.6 m²
- Katlaruum-1:
- 5.7 m²
- Garaaž-2:
- 38.2 m²
- Pind kokku:
- 133.9 m²

2. korrus
- Trepikoda-1:
- 4.4 m²
- Koridor-1:
- 10.3 m²
- Tuba-1:
- 14.6 m²
- Tuba-2:
- 18.5 m²
- Koridor-2:
- 10.6 m²
- Vannituba-1:
- 9.2 m²
- Tuba-3:
- 19.1 m²
- Tuba-4:
- 19.7 m²
- Tuba-5:
- 19.6 m²
- Garderoob-1:
- 4.8 m²
- Garderoob-2:
- 4 m²
- Panipaik-1:
- 4.7 m²
- Pind kokku:
- 139.5 m²


/Lucernie-4-(G2).jpg)






