Projekt - Maja tsinniates 2
- Elamispind:
- 139.6 m²
- Üldpind:
- 171.1 m²
- Kubatuur:
- 769 m³
- Ehit. pindala:
- 121.00 m²
- Katuse kalle:
- 42°
- Kõrgus:
- 8.22 m
Eramaja eelprojekti hind: 1 750 eur
Muud majad ja eriprojektid kokkuleppel
Millest koosneb projekt
Küsi maja kohta

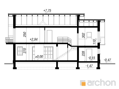
Lõige
- Elamispind:
- 139.6 m²
- Üldpind:
- 171.1 m²
- Kubatuur:
- 769 m³
- Ehit. pindala:
- 121.00 m²
- Katuse kalle:
- 42°
- Kõrgus:
- 8.22 m

1. korrus
- Esik-1:
- 5.6 m²
- Hall-1:
- 6.2 m²
- Panipaik-1:
- 0.9 m²
- Köök-1:
- 8.6 m²
- Elutuba-1:
- 32.9 m²
- Tuba-1:
- 9 m²
- Garderoob-1:
- 2.4 m²
- Vannituba-1:
- 2.4 m²
- Katlaruum-1:
- 4.4 m²
- Garaaž-1:
- 19.6 m²
- Pind kokku:
- 92 m²

2. korrus
- Koridor-1:
- 5.8 m²
- Trepikoda-1:
- 5.1 m²
- Tuba-1:
- 14.4 m²
- Garderoob-1:
- 4.9 m²
- Vannituba-1:
- 6.4 m²
- Tuba-2:
- 9.8 m²
- Tuba-3:
- 19.7 m²
- Garderoob-2:
- 4.5 m²
- Tuba-4:
- 18.4 m²
- Vannituba-2:
- 8.6 m²
- Pind kokku:
- 97.6 m²


/Lawendzie-3-(G2).jpg)







