Projekt - Maja mandlites 2
- Elamispind:
- 108.8 m²
- Üldpind:
- 116.1 m²
- Kubatuur:
- 484 m³
- Ehit. pindala:
- 51.80 m²
- Katuse kalle:
- 30°
- Kõrgus:
- 10.65 m
Eramaja eelprojekti hind: 1 750 eur
Muud majad ja eriprojektid kokkuleppel
Millest koosneb projekt
Küsi maja kohta

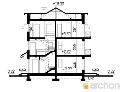
Lõige
- Elamispind:
- 108.8 m²
- Üldpind:
- 116.1 m²
- Kubatuur:
- 484 m³
- Ehit. pindala:
- 51.80 m²
- Katuse kalle:
- 30°
- Kõrgus:
- 10.65 m

1. korrus
- Esik-1:
- 2.9 m²
- Hall-1:
- 1.8 m²
- Trepikoda-1:
- 3.1 m²
- Koridor-1:
- 4.5 m²
- Köök-1:
- 3.8 m²
- Vannituba-1:
- 2.7 m²
- Tuba-1:
- 20.7 m²
- Pind kokku:
- 39.5 m²

2. korrus
- Trepikoda-1:
- 4.4 m²
- Koridor-1:
- 8.5 m²
- Vannituba-1:
- 3.7 m²
- Katlaruum-1:
- 2.7 m²
- Tuba-1:
- 21.5 m²
- Pind kokku:
- 40.8 m²

3. korrus
- Esik-1:
- 1.4 m²
- Panipaik-1:
- 2.2 m²
- Koridor-1:
- 6.7 m²
- Tuba-1:
- 10.8 m²
- Tuba-2:
- 9.4 m²
- Garderoob-1:
- 2.6 m²
- Vannituba-1:
- 3.9 m²
- Pind kokku:
- 37 m²










