Projekt - Maja rododendronites 5 (B)
- Elamispind:
- 270 m²
- Üldpind:
- 333.4 m²
- Kubatuur:
- 1454 m³
- Ehit. pindala:
- 236.30 m²
- Katuse kalle:
- 40°
- Kõrgus:
- 7.99 m
Eramaja eelprojekti hind: 1 750 eur
Muud majad ja eriprojektid kokkuleppel
Millest koosneb projekt
Küsi maja kohta

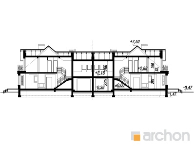
Lõige
- Elamispind:
- 270 m²
- Üldpind:
- 333.4 m²
- Kubatuur:
- 1454 m³
- Ehit. pindala:
- 236.30 m²
- Katuse kalle:
- 40°
- Kõrgus:
- 7.99 m

1. korrus
- Esik-1:
- 3.8 m²
- Hall-1:
- 3.3 m²
- Panipaik-1:
- 1.6 m²
- Köök-1:
- 8 m²
- Elutuba-1:
- 29.9 m²
- Tuba-1:
- 14.3 m²
- Vannituba-1:
- 4.9 m²
- Katlaruum-1:
- 4.6 m²
- Garaaž-1:
- 19.1 m²
- Abiruum-1:
- 4.6 m²
- Pind kokku:
- 94.1 m²

2. korrus
- Trepikoda-1:
- 8.7 m²
- Vannituba-1:
- 8.7 m²
- Tuba-1:
- 14.9 m²
- Garderoob-1:
- 2.2 m²
- Tuba-2:
- 20.5 m²
- Tuba-3:
- 16.3 m²
- Tuba-4:
- 24.5 m²
- Pind kokku:
- 95.8 m²










/Rododendronach-8-(N).jpg)
/Rododendronach-15-(N).jpg)










/Rododendronach-6-(G2P).jpg)



















/Rododendronach-6-(G2N).jpg)

/Rododendronach-4-(N).jpg)
/Rododendronach_6_(A).jpg)
/Rododendronach-(N).jpg)
/Rododendronach-11-(N).jpg)
/Rododendronach-6-(WN).jpg)
/Rododendronach-6-(G2A).jpg)
/Rododendronach-5-(WN).jpg)
/Rododendronach-15-(PN).jpg)
/Rododendronach-5-(WPN).jpg)
/Rododendronach-5-(R2T).jpg)
/Rododendronach-17-(G2P).jpg)
/Rododendronach-18-(G2T).jpg)
