Projekt - Maja lõosilmades (P)
- Elamispind:
- 106.2 m²
- Üldpind:
- 182.8 m²
- Kubatuur:
- 661 m³
- Ehit. pindala:
- 91.50 m²
- Katuse kalle:
- 42°
- Kõrgus:
- 8.03 m
Eramaja eelprojekti hind: 1 750 eur
Muud majad ja eriprojektid kokkuleppel
Millest koosneb projekt
Küsi maja kohta

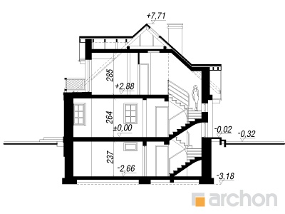
Lõige
- Elamispind:
- 106.2 m²
- Üldpind:
- 182.8 m²
- Kubatuur:
- 661 m³
- Ehit. pindala:
- 91.50 m²
- Katuse kalle:
- 42°
- Kõrgus:
- 8.03 m

Kelder
- Trepikoda-1:
- 4.3 m²
- Koridor-1:
- 13.6 m²
- Katlaruum-1:
- 6.5 m²
- Abiruum-1:
- 13.8 m²
- Abiruum-2:
- 24.2 m²
- Abiruum-3:
- 9.8 m²
- Pind kokku:
- 72.2 m²

1. korrus
- Esik-1:
- 2 m²
- Hall-1:
- 7.3 m²
- Trepikoda-1:
- 4.5 m²
- Köök-1:
- 10.5 m²
- Elutuba-1:
- 24 m²
- Tuba-1:
- 13.8 m²
- Vannituba-1:
- 2.9 m²
- Abiruum-1:
- 3.4 m²
- Pind kokku:
- 68.4 m²

2. korrus
- Koridor-1:
- 5.4 m²
- Vannituba-1:
- 6.6 m²
- Garderoob-1:
- 4.5 m²
- Tuba-1:
- 14.9 m²
- Tuba-2:
- 11 m²
- Tuba-3:
- 15.1 m²
- Garderoob-2:
- 6.2 m²
- Pind kokku:
- 63.7 m²


/Liczi-(P).jpg)








/Niezapominajkach-(N).jpg)
