Projekt - Maja mäekesel 5
- Elamispind:
- 150 m²
- Üldpind:
- 180.4 m²
- Kubatuur:
- 820 m³
- Ehit. pindala:
- 140.30 m²
- Katuse kalle:
- 42°
- Kõrgus:
- 8.00 m
Eramaja eelprojekti hind: 1 750 eur
Muud majad ja eriprojektid kokkuleppel
Millest koosneb projekt
Küsi maja kohta

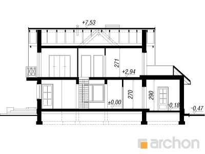
Lõige
- Elamispind:
- 150 m²
- Üldpind:
- 180.4 m²
- Kubatuur:
- 820 m³
- Ehit. pindala:
- 140.30 m²
- Katuse kalle:
- 42°
- Kõrgus:
- 8.00 m

1. korrus
- Esik-1:
- 3.6 m²
- Hall-1:
- 10.5 m²
- Trepikoda-1:
- 3.5 m²
- Köök-1:
- 12.3 m²
- Söögituba-1:
- 16.4 m²
- Elutuba-1:
- 27.6 m²
- Vannituba-1:
- 2.8 m²
- Garderoob-1:
- 2.6 m²
- Katlaruum-1:
- 7 m²
- Tuba-1:
- 9.1 m²
- Garaaž-1:
- 19.1 m²
- Pind kokku:
- 114.5 m²

2. korrus
- Trepikoda-2:
- 8 m²
- Tuba-2:
- 11.4 m²
- Tuba-3:
- 14.9 m²
- Vannituba-2:
- 8.5 m²
- Tuba-4:
- 14.3 m²
- Tuba-5:
- 24.2 m²
- Garderoob-2:
- 6.8 m²
- Pind kokku:
- 88.1 m²



/Milorzebem-7-(GS).jpg)








