Projekt - Maja helmikates
- Elamispind:
- 93.2 m²
- Üldpind:
- 121 m²
- Kubatuur:
- 551 m³
- Ehit. pindala:
- 88.70 m²
- Katuse kalle:
- 40°
- Kõrgus:
- 7.92 m
Eramaja eelprojekti hind: 1 750 eur
Muud majad ja eriprojektid kokkuleppel
Millest koosneb projekt
Küsi maja kohta

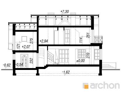
Lõige
- Elamispind:
- 93.2 m²
- Üldpind:
- 121 m²
- Kubatuur:
- 551 m³
- Ehit. pindala:
- 88.70 m²
- Katuse kalle:
- 40°
- Kõrgus:
- 7.92 m

1. korrus
- Esik-1:
- 2.6 m²
- Hall-1:
- 4.2 m²
- Vannituba-1:
- 3.3 m²
- Garderoob-1:
- 2.1 m²
- Garaaž-1:
- 18 m²
- Katlaruum-1:
- 5.6 m²
- Elutuba-1:
- 22.4 m²
- Köök-1:
- 8.7 m²
- Pind kokku:
- 66.9 m²

2. korrus
- Koridor-1:
- 8.1 m²
- Abiruum-1:
- 4 m²
- Tuba-1:
- 14.4 m²
- Tuba-2:
- 14.3 m²
- Vannituba-1:
- 8.1 m²
- Tuba-3:
- 18.3 m²
- Pind kokku:
- 67.2 m²











/Perlowce-(N).jpg)
/Perlowce-(G2N).jpg)
