Projekt - Maja orhideedes
- Elamispind:
- 171.9 m²
- Üldpind:
- 215.8 m²
- Kubatuur:
- 823 m³
- Ehit. pindala:
- 161.40 m²
- Katuse kalle:
- 42°
- Kõrgus:
- 9.29 m
Eramaja eelprojekti hind: 1 750 eur
Muud majad ja eriprojektid kokkuleppel
Millest koosneb projekt
Küsi maja kohta

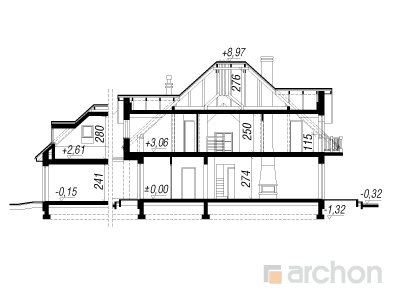
Lõige
- Elamispind:
- 171.9 m²
- Üldpind:
- 215.8 m²
- Kubatuur:
- 823 m³
- Ehit. pindala:
- 161.40 m²
- Katuse kalle:
- 42°
- Kõrgus:
- 9.29 m

1. korrus
- Esik-1:
- 3.1 m²
- Hall-1:
- 7.4 m²
- Köök-1:
- 11.6 m²
- Elutuba-1:
- 38.3 m²
- Vannituba-1:
- 4.1 m²
- Tuba-1:
- 13.1 m²
- Koridor-1:
- 5.8 m²
- Panipaik-1:
- 0.4 m²
- Trepikoda-1:
- 5.6 m²
- Katlaruum-1:
- 7.5 m²
- Garaaž-2:
- 33.3 m²
- Pind kokku:
- 130.2 m²

2. korrus
- Hall-1:
- 8.9 m²
- Vannituba-1:
- 7.6 m²
- Garderoob-1:
- 5.2 m²
- Tuba-1:
- 25 m²
- Tuba-2:
- 16.8 m²
- Tuba-3:
- 18.8 m²
- Vannituba-2:
- 8 m²
- Tuba-4:
- 28.2 m²
- Pind kokku:
- 118.5 m²











