Projekt - Maja kaljukünkal
- Elamispind:
- 98 m²
- Üldpind:
- 125.4 m²
- Kubatuur:
- 579.4 m³
- Ehit. pindala:
- 95.10 m²
- Katuse kalle:
- 42°
- Kõrgus:
- 8.09 m
Eramaja eelprojekti hind: 1 750 eur
Muud majad ja eriprojektid kokkuleppel
Millest koosneb projekt
Küsi maja kohta

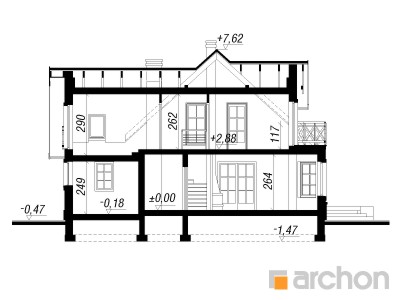
Lõige
- Elamispind:
- 98 m²
- Üldpind:
- 125.4 m²
- Kubatuur:
- 579.4 m³
- Ehit. pindala:
- 95.10 m²
- Katuse kalle:
- 42°
- Kõrgus:
- 8.09 m

1. korrus
- Esik-1:
- 3.8 m²
- Hall-1:
- 4.4 m²
- Köök-1:
- 8.4 m²
- Panipaik-1:
- 1.3 m²
- Elutuba-1:
- 23 m²
- Vannituba-1:
- 2.9 m²
- Katlaruum-1:
- 3.8 m²
- Garaaž-1:
- 20.2 m²
- Pind kokku:
- 67.8 m²

2. korrus
- Koridor-1:
- 8.6 m²
- Tuba-1:
- 14.2 m²
- Tuba-2:
- 17.3 m²
- Vannituba-1:
- 7.4 m²
- Tuba-3:
- 18.2 m²
- Garderoob-1:
- 5.9 m²
- Pind kokku:
- 71.6 m²











