Projekt - Maja hernestes 2
- Elamispind:
- 119.2 m²
- Üldpind:
- 145.6 m²
- Kubatuur:
- 682 m³
- Ehit. pindala:
- 118.80 m²
- Katuse kalle:
- 42°
- Kõrgus:
- 8.27 m
Eramaja eelprojekti hind: 1 750 eur
Muud majad ja eriprojektid kokkuleppel
Millest koosneb projekt
Küsi maja kohta

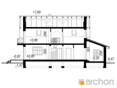
Lõige
- Elamispind:
- 119.2 m²
- Üldpind:
- 145.6 m²
- Kubatuur:
- 682 m³
- Ehit. pindala:
- 118.80 m²
- Katuse kalle:
- 42°
- Kõrgus:
- 8.27 m

1. korrus
- Esik-1:
- 4.3 m²
- Hall-1:
- 7.5 m²
- Köök-1:
- 9.3 m²
- Elutuba-1:
- 29 m²
- Trepikoda-1:
- 4.1 m²
- Panipaik-1:
- 1.1 m²
- Tuba-1:
- 9.3 m²
- Vannituba-1:
- 3.4 m²
- Katlaruum-1:
- 4.4 m²
- Garaaž-1:
- 18 m²
- Pind kokku:
- 90.4 m²

2. korrus
- Koridor-1:
- 4.5 m²
- Tuba-1:
- 17.3 m²
- Garderoob-1:
- 4 m²
- Vannituba-1:
- 8.6 m²
- Tuba-2:
- 18.1 m²
- Tuba-3:
- 15.5 m²
- Pind kokku:
- 68 m²



/Kasztanem-3-(PN).jpg)









